Мы профессионально занимаемся строительством дачных домов, бань, коттеджей, фундаментов. Звоните!
+7 (351) 749-86-18 garantstr174@yandex.ru

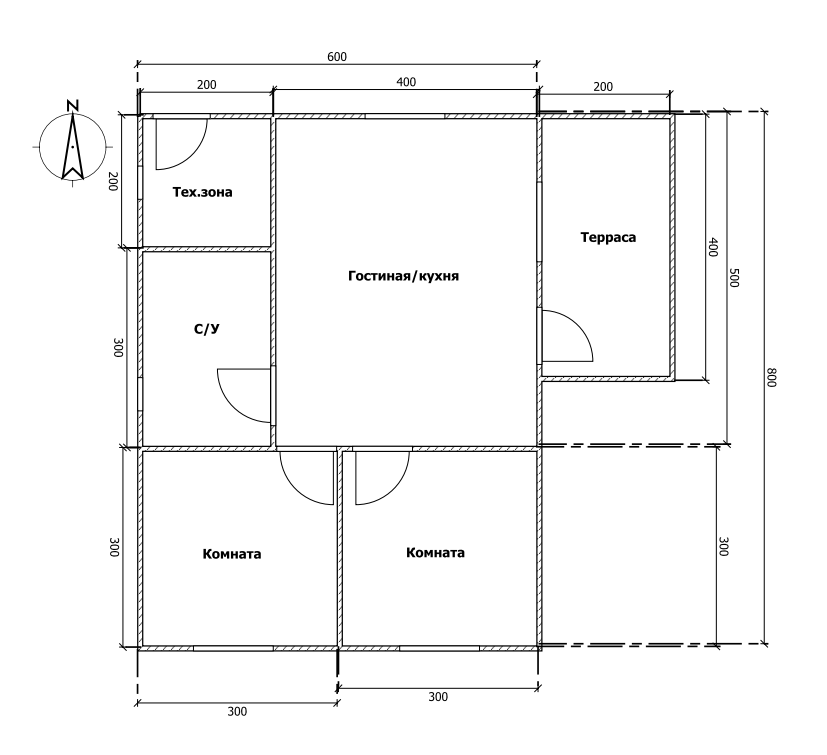
Дачный дом «Одноэтажный с комфортом»

  • Размеры: 56 м2 – площадь застройки; 48 м2 – площадь жилая
  • Высота помещения: 2,5 м
  • Фундамент: винтовые сваи 16 шт., длина 3,2м, диаметр 76мм
  • Обвязка винтовых свай: брус сечением 150мм*150мм*4000мм
  • Лаги пола: доска сечением 50мм*150мм*4000мм
  • Силовой каркас: доска сечением 50мм*100мм*4000мм
  • Кровля: односкатная стропильная система, покрытая металлочерепицей «Монтеррей» со всеми доборными элементами
  • Водосточная система: Verat пластиковая
  • Фасад: сайдинг виниловый «Grand Line» со всеми доборными элементами
  • Внутренняя отделка стен/потолка: ГВЛВ ПК 10мм Knauf Суперлист / OSB 9мм
  • Пол: черновая доска + OSB/фанера
  • Утепление стен, потолка и пола: 100мм
  • Ветровлагозащита и пароизоляция утеплителя
  • Окна: пластиковые поворотно-откидные с противомоскитными сетками и подоконниками
  • Дверь межкомнатная: массив дерева с фурнитурой
  • Дверь входная: утепленная металлическая Российского производства
  • Защита от грызунов: металлическая сетка

Все деревянные элементы ограждения террасы шлифованные с покраской

Цена: 1 295 000 руб.
Напишите нам и мы поможем подобрать проект для вас!